За вашите прозорци и врати ние ще ви предложим няколко изпитани във времето марки на PVC профилни системи, благодарение на които ще получите търсения ефект за топло- и звукоизолация, сигурност, комфорт и визия.
Доверихме се на няколко световно известни производителя на PVC профилни системи – Salamander, Kömmerling и REHAU.

PVC дограма Rehau
Rehau (Рехау) е немска система за PVC дограма доказваща надеждността си на българския пазар вече повече от 30 години. Това е система, която подържа високи стандарти на производство дори и до днес, предлагаща качество и изгодни цени. Системата, оборудвана с висококачествен обков MACO, гарантира безпроблемна работа във времето. Противовзломните решения на обкова предлагат сигурна гаранция за защита на жилището или офиса. Изработва се от рециклируем полимер, КО-екструдирана вътрешност за максимална екологичност на продукта.
AluClip система, която предлага възможност за монтаж на алуминиева капачка от външната страна с цел разширяване на цветовите възможности, защита на външната страна на профила и комбиниране на здравината на алуминия с качествата и ценовата достъпност на PVC- то.
Поемаме пълна гаранция на монтажа от наша страна - 60 месеца.
Гаранция на профилната система - 30 години.
Rehau Euro 70
Профилна система с конструктивна ширина от 70 мм. (външни стени с дебелина 2,7 мм.), 5 камери в касата и 5 в крилото, и метални усилващи профили с дебелина 1,5 - 2 мм. Оборудва се с двоен или троен стъклопакет с ширина от 24 мм. до 36 мм., или термопанел.


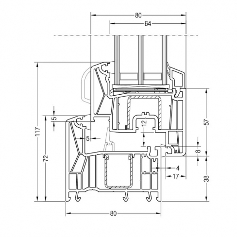
Rehau Synego 80
Профилна система с конструктивна ширина от 80 мм. (външни стени с дебелина 2,7 мм.), 7 камери в касата и 6 в крилото, и метални усилващи профили с дебелина 2 мм. Оборудва се с троен стъклопакет с ширина 42 мм.



PVC дограма Kömmerling
KÖMMERLING (Кьомерлинг) е немска система за PVC дограма. Водена от безкомпромисни принципи по отношение на качеството през годините, днес тя е сред водещите системи за PVC дограма на световния пазар. Разбира се, пътят до тази лидерска позиция е извървян методично и с цената на постоянно развитие и усъвършенстване, контрол на качеството и не на последно място – лоялни партньорски отношения в целия свят. Затова и не е учудващо, че повечето корпоративни и частни клиенти, работили веднъж с материалите на KÖMMERLING, остават верни на марката в продължение на десетилетия.
Поемаме пълна гаранция на монтажа от наша страна - 60 месеца.
Гаранция на профилната система - 30 години.
Kömmerling MD 76
Профилна система с конструктивна ширина от 76 мм. (външни стени с дебелина 3 мм.), 6 камери в касата и 6 в крилото, и метални усилващи профили с дебелина от 1,5 мм. - 2 мм. Оборудва се с двоен или троен стъклопакет или термопанел с ширина от 24 мм. до 48 мм.


Kömmerling MD 88
Профилна система с конструктивна ширина от 88 мм. (външни стени с дебелина 3 мм.), 7 камери в касата и 7 в крилото, и метални усилващи профили с дебелина 2 мм. Оборудва се с троен стъклопакет с ширина до 60 мм.



PVC Дограма Salamander
Salamander (Саламандър) е система за PVC дограма с немско качество от най-висок клас, не само на българския, но и на световния пазар. Отличават се с безупречните си външен вид, издръжливост и изключително дълъг период на експлоатация – над 60 г. Произвежда се от 100% рециклируем полимер с впечатляващи топлоизолационни способности. Това е една от най-иновативните, доказани във времето, профилни системи създадени да издържат.
Поемаме пълна гаранция на монтажа от наша страна - 60 месеца.
Гаранция на профилната система - 30 години.
Salamander greenEvolution 76
Модулна профилна система с конструктивна ширина от 76 мм. (външни стени с дебелина 3 мм.), която позволява изпълнение с 6 камери в касата и 4 камери в крилото, и метални усилващи профили с дебелина до 2,5 мм. Оборудва се с троен или двоен стъклопакет с ширини от 24 мм. или 44 мм.


Salamander blueEvolution 82
Модулна профилна система с конструктивна ширина от 76 мм. (външни стени с дебелина 3 мм.), която позволява изпълнение с 6 камери в касата и в крилото, и метални усилващи профили с дебелина 2,5 мм. в касата и 2,5 мм. в крилото. Оборудва се с троен стъклопакет с ширина от 44 мм.

