
Българска профилна ситеми - Altest
Тази алуминиева система се произвежда в България. Имат варианти както за профили без термомост, така и профили с термомост. Базовата ширина на студените профили е 40-45 мм., а на профилите с термомост 50-75 мм. Термомостът при тези системи е от 12 до 20 мм.
Профилни системи без термомост
Така наречените студени профили или тези, без термомост се използват основно за изработка на врати за санитарни помещения, вътрешни интериорни врати, витрини на магазини/складове или вътрешни преградни стени за офиси. Поради ниската им топло-изолация, не се препоръчва ползването им за външно остъкляване на жилища или офиси, тъй като топлозагубите ще са големи. Могат да се оборудват със стъклопакети с ширина от 18 мм. до 20 мм., еденични стъкла или с различни плоскости - термопанели, ПДЧ, поликарбонат.
Поемаме пълна гаранция на монтажа от наша страна - 36 месеца.
Гаранция на профилната система - 30 години.
Altest Pony 375


Алуминиева система с конструктивна ширина от 38 мм. БЕЗ термо мост. Оборудване със стъклопакет, плоскост или единично стъкло с ширина от 18 мм. до 20 мм. Най-широко използвана за затваряне на санитарни помещения.
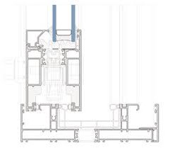
Профили с прекъснат термомост
За българската системи на Altest са разработени профили с по-добри изолационни параметри, като за целта е вграден полиамиден мост между външната и вътрешната страна на профила. Той намалява значително топлинните разлики от вън навътре и обратно. Тази система е с по-тънки стени на профилите и по-малка ширина на термомоста от високия клас алуминиеви профили на ЕТЕМ, ALUMIL и ELVIAL, което я прави значително по-евтина, но с по-ниски топлоизолационни параметри и структорна здравина. Затова не се препоръчва да се правят големи врати, които ще са много често експлоатирани (например за обществени сгради) или да се монтират на помещения с високи изисквания за топло- и звуко- изолация.
Поемаме пълна гаранция на монтажа от наша страна - 36 месеца.
Гаранция на профилната система - 30 години.
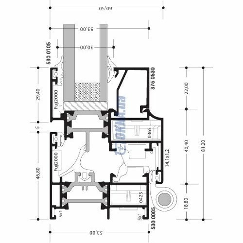
Altest Eskimos 530


Алуминиева система с конструктивна ширина от 53 мм. (външни стени с дебелина 1,5 мм.) и широчина на прекъснатият термо мост от 24 мм. Оборудване с двоен стъклопакет или термопанел с ширина от 24 мм. до 36 мм.
Altest Sliding S-1000


Алуминиева система за плъзгане с конструктивна ширина от 45 мм. (при 2 релси) до 90 мм. (при 3 релси) БЕЗ термо мост. Оборудване със стъклопакет, плоскост или единично стъкло с ширина от 18 мм. до 20 мм. и четки по плъзгащите се крила. Най-широко използвана за отделяне на стаи или остъкляване на тераси.

Гръцка профилна система - Etеm
Алуминиевите системи с гръцки произход Etem (Етем) са сред водещите решения на пазара за алуминиево остъкляване, както в световен – така и в локален мащаб. Системата се изработва от исключително здрав и дебелостен алуминий, който предлага и изключително висококласна топлоизолация поради наличието на прекъснат полиамиден термо мост в сърцевината му. Ъгловите сгобки минават през ъглонабивна машина в процеса на производство с цел осигуряване максимална стабилност и здравина на конструкциите. Много подходящи за оборудване на обществени сгради посрещащи висока експлоатация, където безупречното функциониране е от най-голяма важност.
Поемаме пълна гаранция на монтажа от наша страна - 60 месеца.
Гаранция на профилната система - 30 години.
Etem E 45


Алуминиева система с конструктивна ширина от 60мм. (външни стени с дебелина 1,6 мм.) и широчина на прекъснатият термо мост от 20 мм. Оборудване с двоен стъклопакет или термопанел с ширина от 24 мм. до 36 мм. и с уплътнения по касата, крилото и трето в средата за повишена защита от вятър, дъжд и шум. Предлага шумоизолация от 47 dB.
Etem E 75


Алуминиева система с конструктивна ширина от 60мм. (външни стени с дебелина 1,6 мм.) и широчина на прекъснатият термо мост от 20 мм. Оборудване с двоен стъклопакет или термопанел с ширина от 24 мм. до 36 мм. и с уплътнения по касата, крилото и трето в средата за повишена защита от вятър, дъжд и шум. Предлага шумоизолация от 47 dB.
Etem ES 70 Sliding System


Алуминиева система за плъзгане с повдигане с конструктивна ширина от 70 мм. (външни стени с дебелина 2 мм.) и широчина на прекъснатият термо мост от 39 мм. Оборудване с двоен или троен стъклопакет с шорина от 24 мм. до 52 мм. Предлага шумоизолация от 45 dB. Системата е изключително подходяща за остъкляване на отвори с големи размери, тъй като позволява размери на единично крило до 3+ метра във височина и широчина и тегло от до 440 килогама, без да отнема от лекотата и леснотата на плъзгане на крилата.